Comercial

Eno Virreyes

Más info

Localización: Ciudad de México

Año: 2018

Superficie: 173 m2

Colaboración con: FRAMA

Equipo: Cassandra Bradfield, José Ignacio Vargas

Fotos: Maureen M. Evans

Eno Virreyes es un animado restaurante y café ubicado en la Ciudad de México, el primero de muchos exitosos cafés-restaurantes fundados por el chef mexicano Enrique Olivera.

 

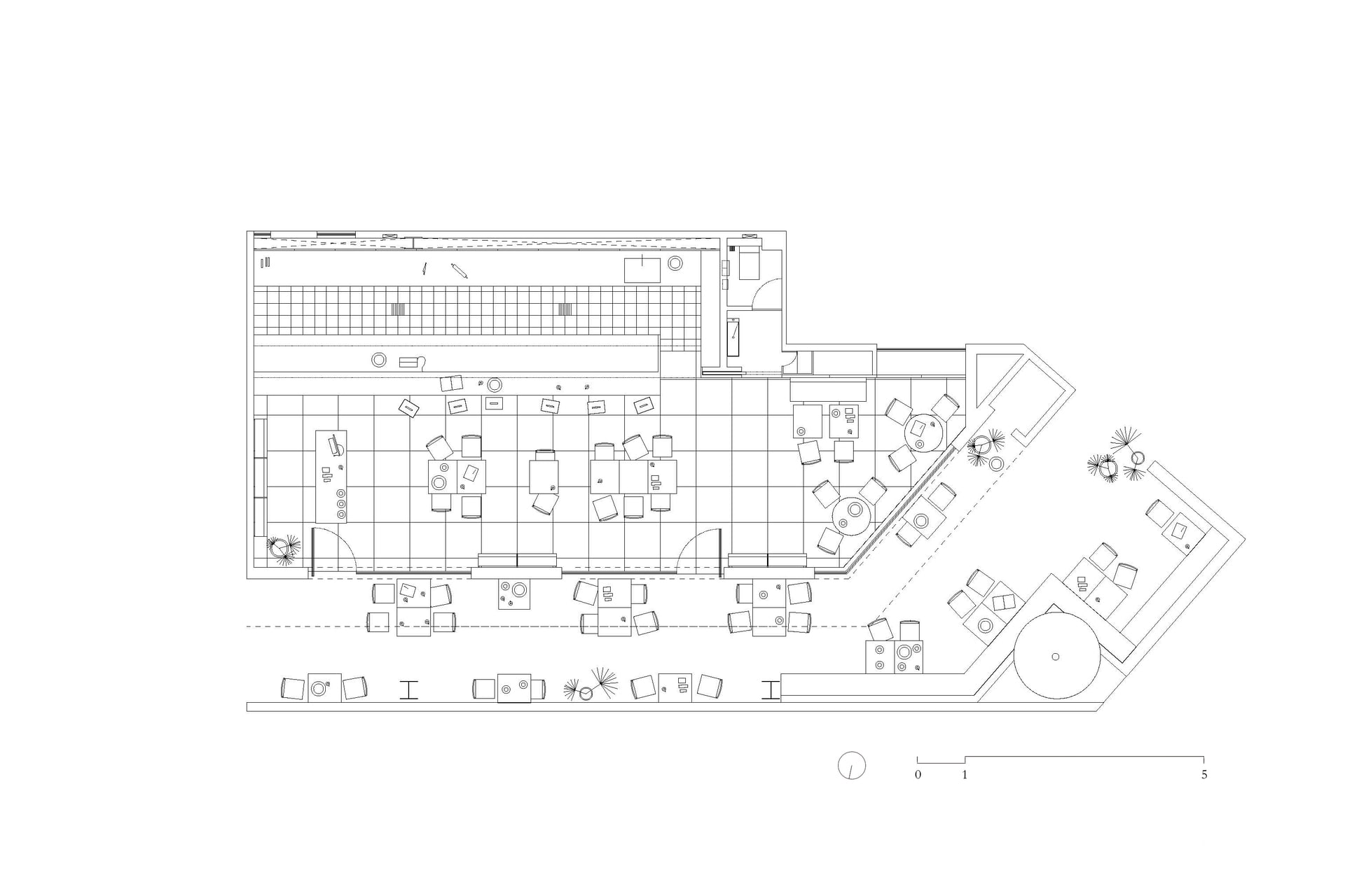
El proyecto arquitectónico propone una distribución espacial eficiente definida por las aperturas de un solo muro. Este muro habitable contiene los servicios y permite la interacción entre la cocina, los servicios y el restaurante. Este elemento enfatiza la horizontalidad - un concepto recurrente en los restaurantes de Enrique Olvera - a través de paneles de madera que van del suelo al techo por una longitud de 11 metros. La modulación de estos paneles y sus vanos no sólo delimitan los distintos programas, sino que también dan sentido y orden al espacio. El muro funciona también como una barra de servicio, ya sea para sentarse a comer, almacenar productos o entregar platillos.

 

Se utiliza una paleta natural en todo el espacio, con énfasis en el uso de materiales locales. El mármol existente del piso se rescató, y se utilizó madera de arce para las paredes y los muebles. Esta combinación amplifica la sensación de luz y crea un ambiente cómodo y agradable para los clientes. El concreto pigmentado de color rojo quemado juega un papel de contraste con el interior que se define por colores neutros y claros. A pesar de la renovación completa del interior, el diseño remarca las largas líneas horizontales del espacio, al mismo tiempo, agrega calidez y textura que hacen un guiño a la rica historia de materiales de México.

Superficie: 173 m2

Año: 2018

Colaboración con: FRAMA

Equipo: Cassandra Bradfield, José Ignacio Vargas

Fotos: Maureen M. Evans

Eno Virreyes es un animado restaurante y café ubicado en la Ciudad de México, el primero de muchos exitosos cafés-restaurantes fundados por el chef mexicano Enrique Olivera.

 

El proyecto arquitectónico propone una distribución espacial eficiente definida por las aperturas de un solo muro. Este muro habitable contiene los servicios y permite la interacción entre la cocina, los servicios y el restaurante. Este elemento enfatiza la horizontalidad - un concepto recurrente en los restaurantes de Enrique Olvera - a través de paneles de madera que van del suelo al techo por una longitud de 11 metros. La modulación de estos paneles y sus vanos no sólo delimitan los distintos programas, sino que también dan sentido y orden al espacio. El muro funciona también como una barra de servicio, ya sea para sentarse a comer, almacenar productos o entregar platillos.

 

Se utiliza una paleta natural en todo el espacio, con énfasis en el uso de materiales locales. El mármol existente del piso se rescató, y se utilizó madera de arce para las paredes y los muebles. Esta combinación amplifica la sensación de luz y crea un ambiente cómodo y agradable para los clientes. El concreto pigmentado de color rojo quemado juega un papel de contraste con el interior que se define por colores neutros y claros. A pesar de la renovación completa del interior, el diseño remarca las largas líneas horizontales del espacio, al mismo tiempo, agrega calidez y textura que hacen un guiño a la rica historia de materiales de México.